Appartement Appartement studio résidence récente - Mérignac Capeyron 30 m²




Description
Situé à : MERIGNAC
Venez découvrir en exclusivité dans notre agence Immosolutions ce studio récent aux normes handicapé de 30 m² habitables.
Situé au rez-de-chaussée d'un immeuble de 3 étages avec ascenseur, dans un quartier très recherché, calme et résidentiel, il offre une proximité immédiate avec les commerces, les écoles et toutes les commodités.
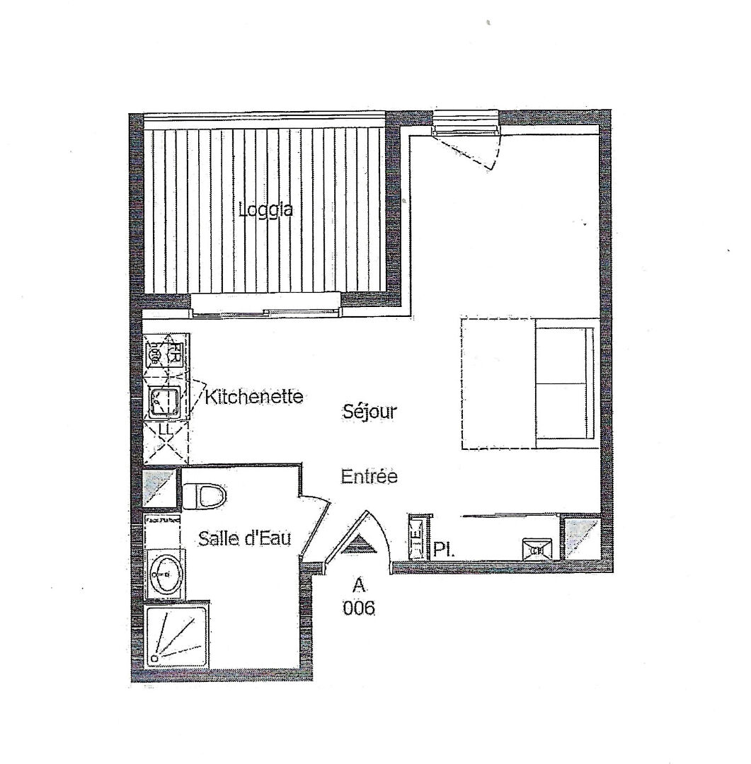
Vous découvrirez une kitchenette aménagée et équipée ouverte sur un agréable séjour de 25m² avec placard intégré et accès à une loggia.
L'appartement dispose d'une salle d'eau avec toilettes.
Vous profiterez d'une place de parking en sous-sol, ainsi que d'un accès au parc, calme et arboré, de la résidence.
Vous apprécierez la construction récente, le calme et l'environnement, ainsi que la proximité des écoles, des commerces et des transports.
A visiter sans tarder !
Bien proposé par Manon Bernada E.I.
Siren 981 936 610
Honoraires charge vendeur
Les informations sur les risques auxquels ce bien est exposé sont disponibles sur le site Géorisques : www.georisques.gouv.fr
DPE : C
Appartement en copropriété
Nombre de lots dans la copropriété : 157 lots, dont 64 à usage d'habitation
Pas de procédure en cours
Charges de copropriété : environ 577 euros par an
Copropriété de 157 lots - dont 64 lots habitation.().
Manon BERNADA (EI) Agent Commercial - Numéro RSAC : - .
Détails
- Surface habitable
- 30 m²