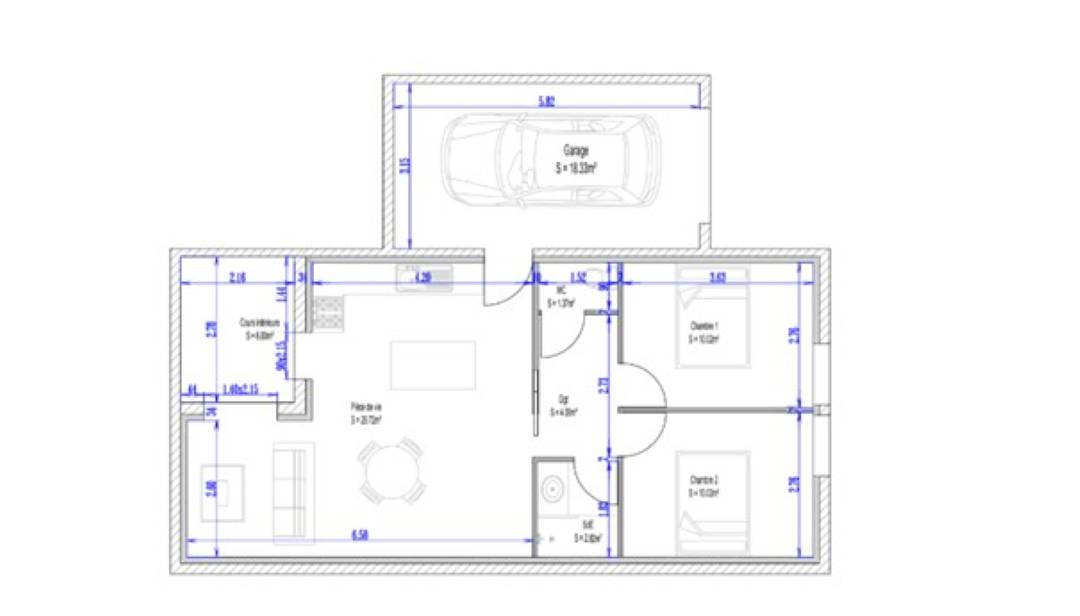
Maison Plateau à rénover 72 m²



Description
Situé à : MERIGNAC
Bati couvert de 72m² + Garage aménageable de 18m² avec cour intérieure.
Possibilité de créer une habitation T3 de maximum 64m² avec une cour extérieur de 6 m², parfait pour un petit espace extérieur privé (terrasse, jardin d'agrément, etc.)
DP déposé par les vendeurs et celle ci sera purgée de tout recours.
Situé dans un secteur calme et recherché de Mérignac entre saint Augustin et Mondésir, ce bien rare offre de nombreuses possibilités !
A prévoir
- Viabilisations (eau, électricité, tout-à-l'égout) ;
Idéal projet de rénovation, investisseur, artisan ou primo-accédant :
Chiffrage travaux en cours .
Emplacement recherché , Proche commodités et axes principaux
DPE : C et GES : C / bien avec aucun système de chauffage
Honoraires à la charge des acquéreurs à hauteur de 6.36% du prix (soit hors honoraires 190 000 euros).
+ 7.37 % honoraires de négociation TTC.
Détails
- Surface habitable
- 72 m²
- Nombre de niveaux
- 1
- Nombre de chambres
- 2